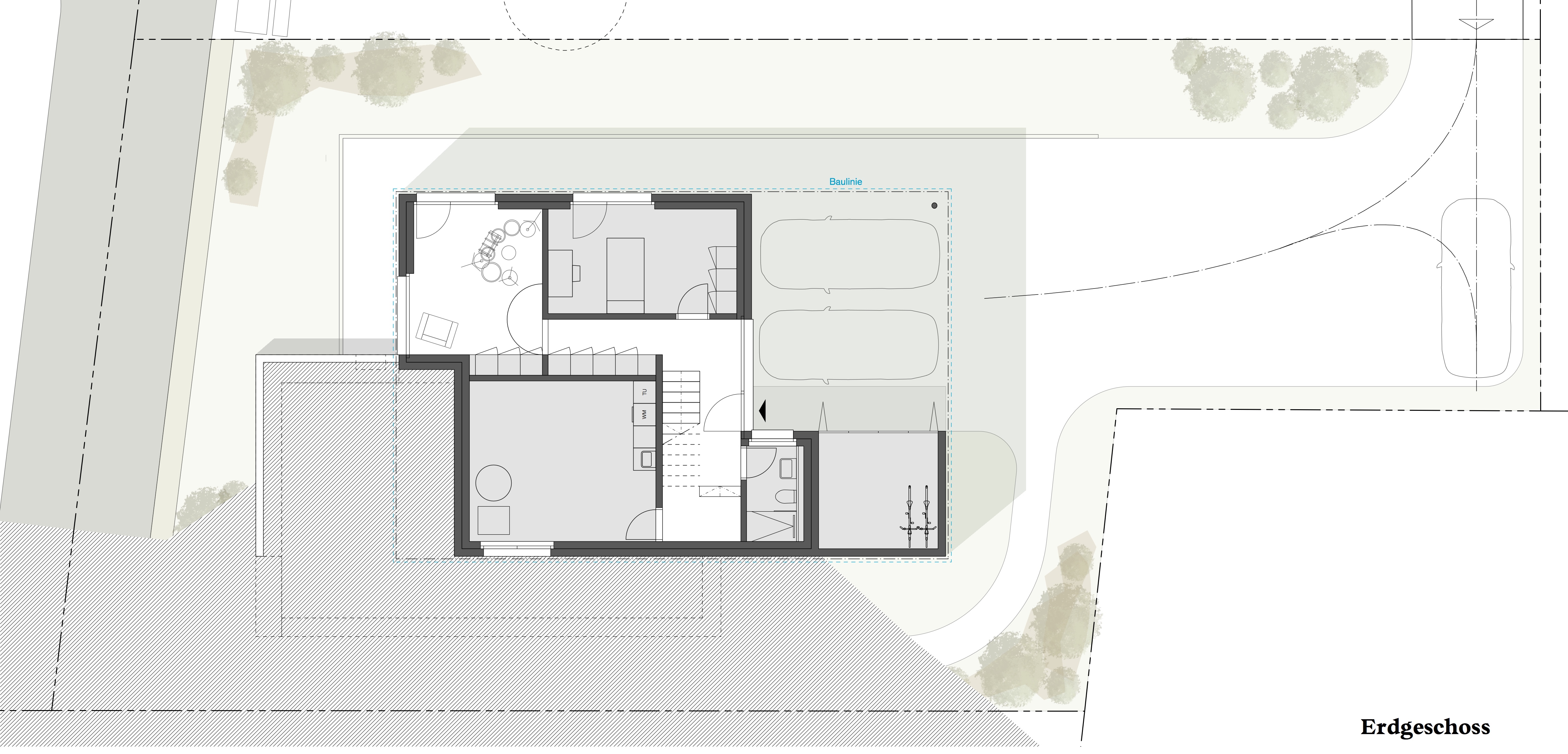
Für ein junges Paar projektiert Dost ein Einfamilienhaus im Quartier Ober-Kapf, Emmen. Das Grundstück befindet sich neben einem historischen Herrschaftshaus und besticht qualitativ durch Aussicht, Begrünung und Topografie. Diese Qualitäten sind, kombiniert mit den Wünschen der Bauherren, sensibel in den Entwurf eingeflossen. Die Holzfassade verkleidet das Obergeschoss und schafft durch ihre abwechselnde Transparenz und Undurchsichtigkeit variable Raumgefühle.
Projektinformation
Standort: Emmenbrücke
Nutzung: Wohnhaus
Aufgabe: Vorstudie, Vorprojekt,
Bauprojekt, Bewil-
ligungsverfahren, Aus-
schreibung, Ausführungs-
planung
Auftrag: Direktauftrag
Fertigstellung: 2018
Kennzahlen:
Anzahl Zimmer: 5.5
Wohnfläche: 167.6 m2
Grundstücksfläche: 602.7 m2
Kubatur SIA 116: 959 m3
weitere Informationen:
Bauleitung: OBERHOLZER
ARCHITEKTUR AG
Bauweise: EG Massivbau
OG Holzbauweise




