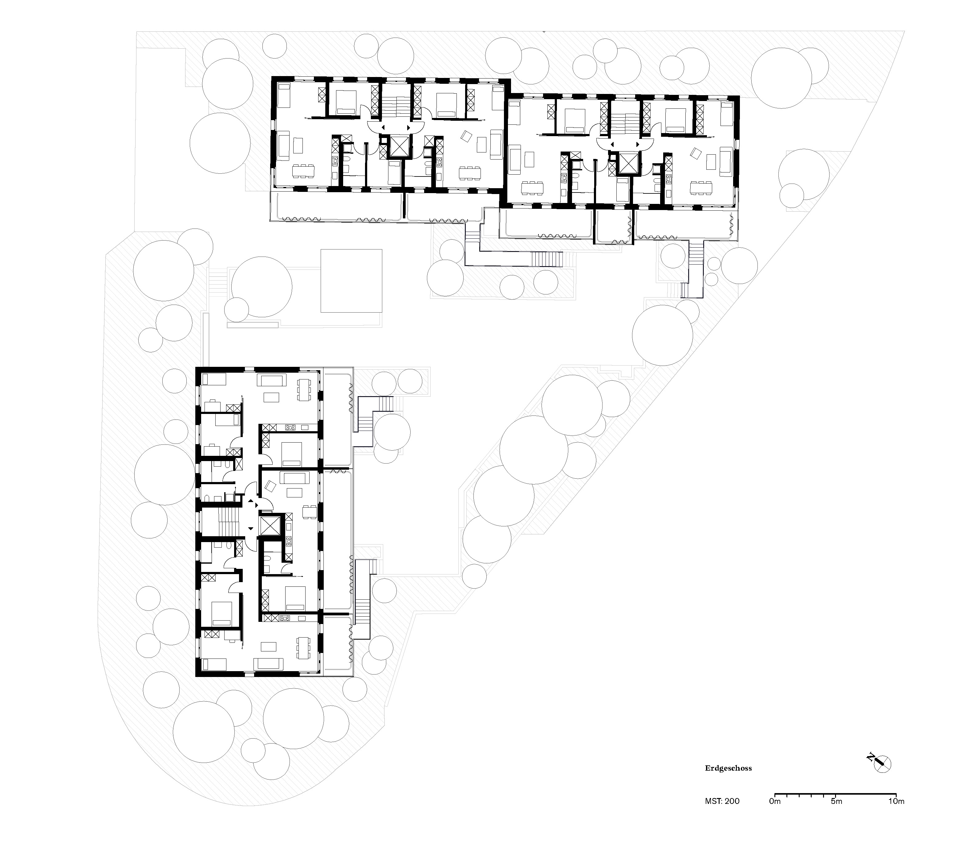
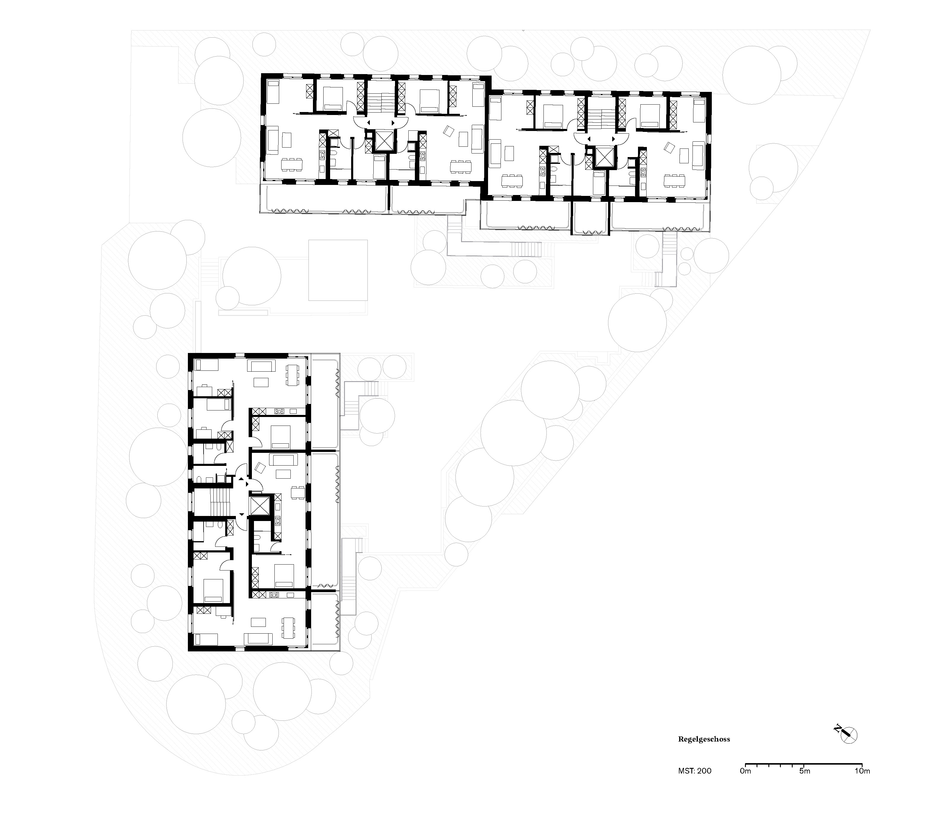
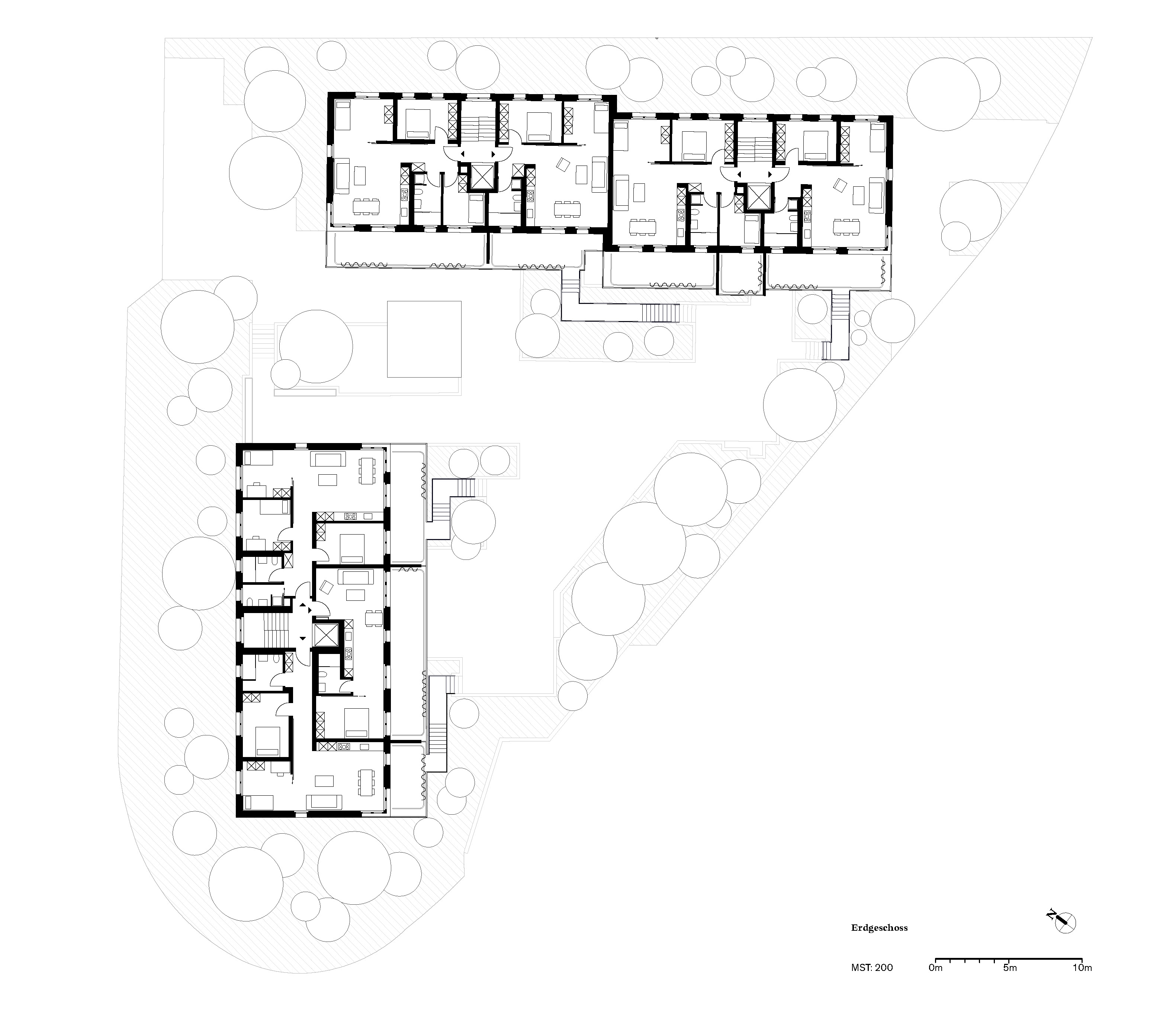
Die ursprünglichen Werte erkennen und mit den Anforderungen von Heute vereinen. Insgesamt 5 Wohnsiedlungen der Bau- und Wohngenossenschaft Rhenania sollen künftig aufgewertet werden, gemäss einem grundlegenden Sanierungskonzept.
Als erste Etappe wird die Totalsanierung der Fünfzigerjahre Bauten an der Brunnenwiesenstrasse vorgenommen. Wobei die Wertschätzung des Bestandes und die Förderung des lokalen Gewerbes entscheidende Leitplanken sind. Ebenso wichtig ist der zirkuläre Umgang mit den Baumaterialien, die Kenntnis ihrer Wertschöpfungsketten fordert eine Wiederverwendung der Tragstruktur und der Einsatz von regionalen Materialien.
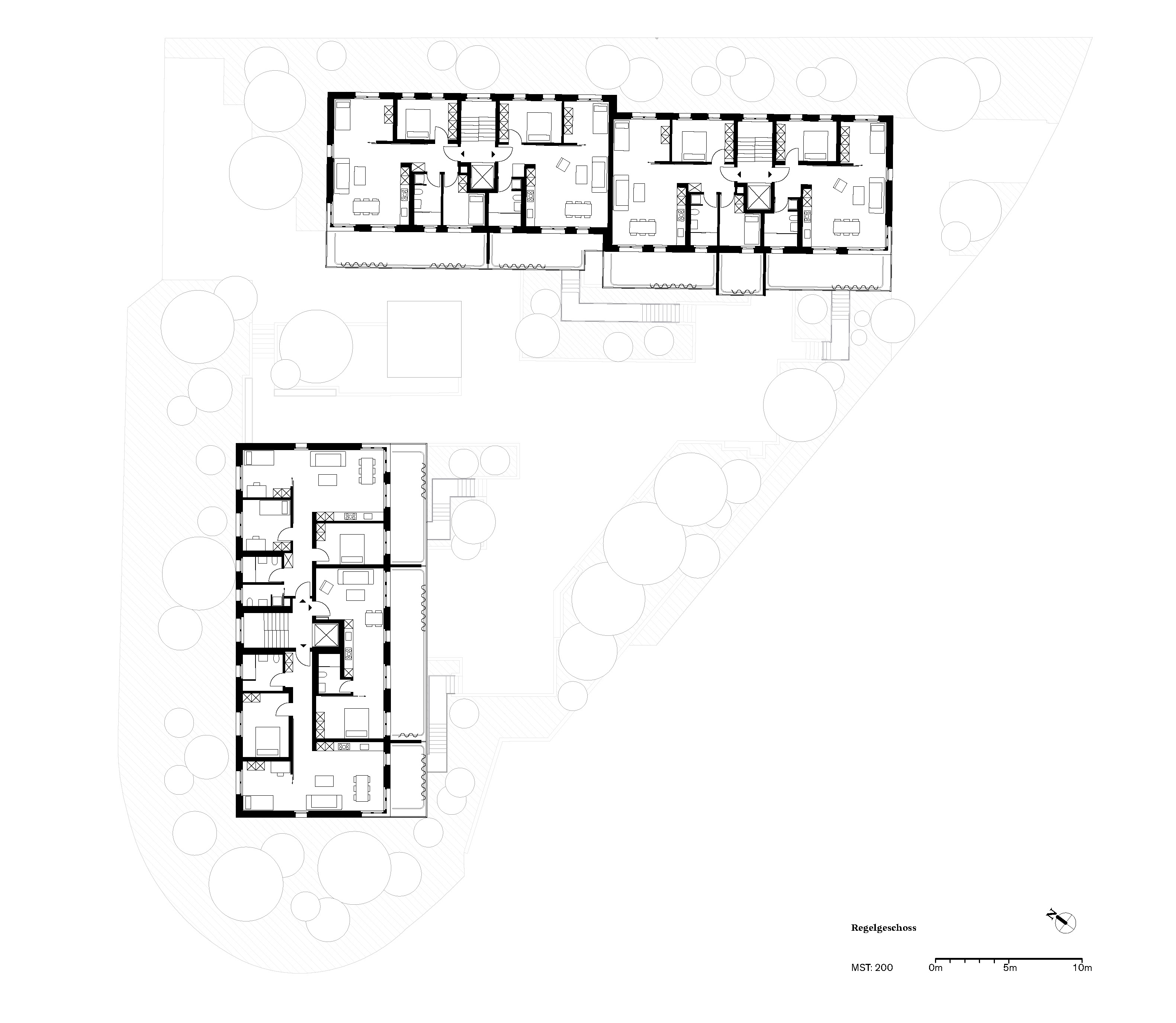
Durch die strukturellen Änderungen in den bestehenden Gebäuden wird moderner Wohnraum geschaffen. Gezielte Eingriffe in die Statik, den Schallschutz sowie den Brandschutz ermöglichen es, die vorhandene Gebäudestruktur den heutigen Standards anzugleichen. Die Sanierung der Gebäude erfolgt in drei Bauphasen, in denen ein Teil der Gebäude bewohnt bleibt. Die auch sozial nachhaltige Sanierung der Gebäude erfolgt in drei Bauphasen, in denen jeweils ein Teil der Gebäude bewohnt bleibt. So wird eine komplette Entmietung verhindert und die Bedürfnisse der Bewohnenden berücksichtigt, denn sie können direkt selber von der Aufwertung der Liegenschaften profitieren.
Projektinformation
Standort: Neuhausen SH
Nutzung: Wohnsiedlung
Aufgabe: Umbau
Auftrag: Analyse, Konzept,
Planung & Umbau
Zeitraum: 2018-2024
Kennzahlen:
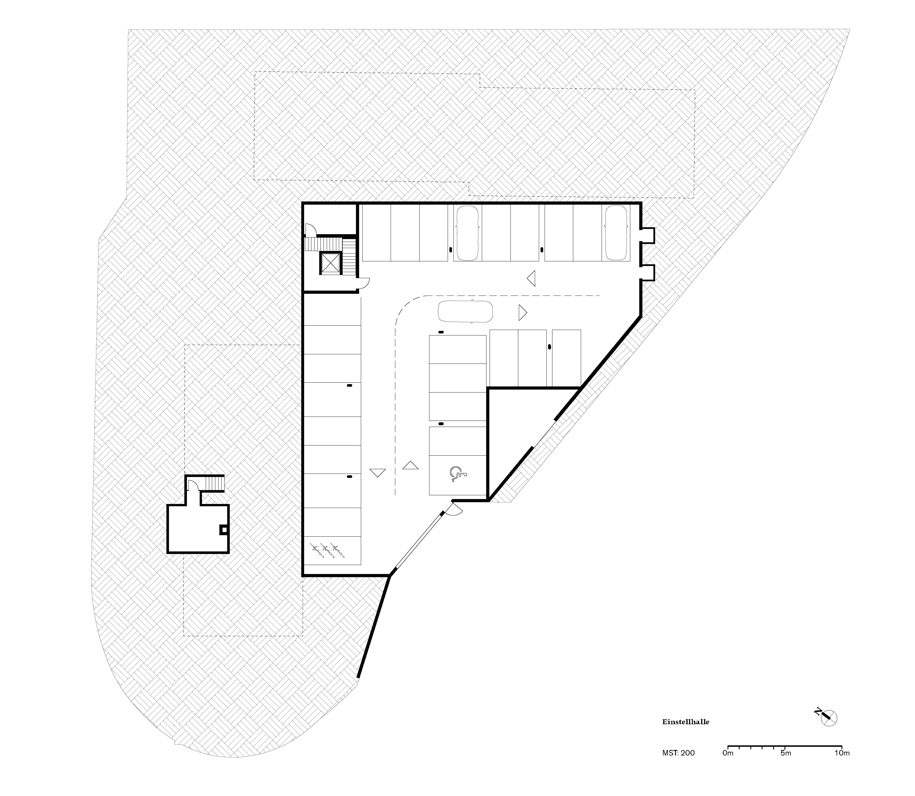
Gebäudevolumen: 11´700 m3
Grundstückfläche: 2548 m2




