


Innenarchitektur
HerzKlinik Hirslanden
Zürich
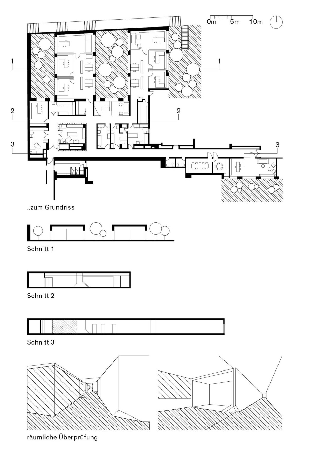
Die Lichthöfe werden durch einen Grünkörper fortgesetzt. Die reduzierte Materialpalette setzt auf hohe Kontraste. Ein Anheben wegweisender Raumecken löst die ortagonale Strenge.
Nutzung: Herzklinik
Auftrag: Direktauftrag
Nutzfläche: 690 m2
Fertigstellung: 2013
Aufgabenstellung
Als Teil des Belegarztsystems der Klinik Hirsalden gründen der Kardiologe Prof. Dr. Med. Roberto Corti und der Chirurg Prof. Dr. Med. Jürg Grünenfelder zusammen die neue HerzKlinik. Hier sollen die Qualitäten modernster Kardiologie und Chirurgie zu einem einzigartigen Kompetenzzentrum zusammengeführt werden.
Die neue Firma soll innerhalb der starken Marke Hirslanden einen eigenen Standard setzten.
Individuelle Betreuung, höchste Qualitätsansprüche und Nähe zum Patienten stehen im Zentrum. Die Räume sollen die klinische Anonymität durchbrechen und ein vertrautes Gefühl nachhaltiger Sicherheit ausstrahlen.
Der vorgegebene Ort im Untergeschoss des neuen Enzebühltraktes, mit den einzelnen prägenden Lichthöfen als Tageslichtspender, beeinflussen den Entwurf.
Konzept
Basis der realisierten Raumorganisation bildet eine präzise Analyse der Prozesse (Spitalbetrieb, Patientenfluss, Personal) sowie die spezifischen Raumanforderungen der einzelnen Bereiche.
Ein optimiertes Prozessdiagramm bildet die kompromisslose Grundlage für jede weitere Entscheidung. Um das Gefühl der Sicherheit zu unterstreichen wird eine intuitive Orientierung angestrebt, welche ohne Bezeichnung der spezifischen Dienstleistungen funktioniert. So werden Raumfunktionen durch prägnante Einzelbuchstaben ersetzt. Namen der behandelnden Ärzte werden bewusst und dauerhaft gesetzt.
Die als Perforation verstandenen bestehenden begrünten Lichthöfe werden durch einen weiteren Grünkörper fortgesetzt, welcher fortan als zentraler Orientierungspunkt funktioniert und den engen Raumraster durch eine gefühlte Platzsituation aufbricht.
Umsetzung
Die reduzierte Materialpalette setzt auf hohe Kontraste. Ein Anheben wegweisender Raumecken löst die ortagonale Strenge und betont den Raumfluss ohne den Gesamtanspruch an langlebige Gültigkeit zu schwächen.
Es werden zwei Wert-volle multisensuale Sprachen entwickelt. So zeichnet sich der Diagnosebereich mit Glattputz und eingefärbtem Zementbelag durch technisch schlichte Eleganz aus. Für Beleuchtung und Akustik werden hier integrale Lösungen umgesetzt.
Im Gegensatz dazu setzen die Beratungszonen mit massivem Holzboden, grosszügigen Verglasungen, eleganten Textilien und gependelten Beleuchtungen auf die Attribute Ruhe, Transparenz und Vertrauen.
Eine warm-weisse Beleuchtung überspannt die gesamte Herzklinik und setzt einen spürbaren Kontrast zur restlichen Klinik.
Mehrwert
Die mutigen Entscheidungen der Bauherrschaft werden mit einer starken, in sich stimmigen, Markenidentität belohnt, welche unabhängig von der Rolle des Betrachters, seines kulturellen Hintergrundes oder seines Alters verstanden werden. So wird in der oft hierarchisch organisierten Medizinwelt eine Brücke zwischen den Nutzern geschaffen und ein Gefühl des Zusammenhalts als Teil einer grossen Sache gefördert.
Der Einsatz von, für den Spitalbau unkonventionellen, Materialien wie Glattputz oder Naturprodukte, kompensieren die scheinbare «Anfälligkeit» der gewählten Materialien und erzeugt eine Atmosphäre der Sorgfalt und Entschleunigung.
Der optimierte Prozess steigert die Performance und baut Ängste ab und unterstützt so die hohen Qualitätsansprüche der HerzKlinik Hirslanden.
Zur Bildergalerie