

Rebuilding
detached house
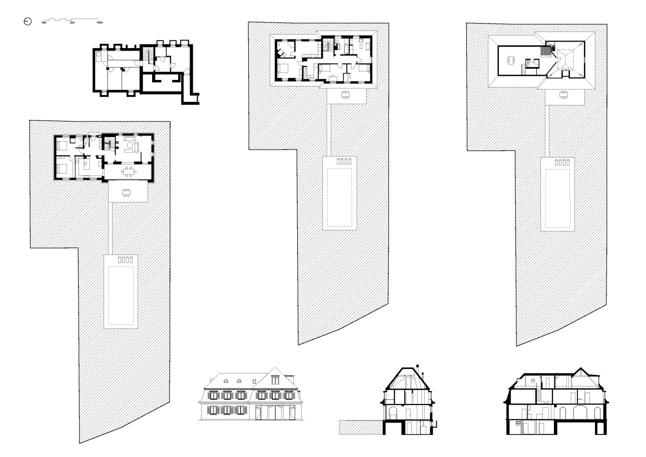
Weinsteig, Schaffhausen
The building looks back on an eventful history. The original servants' house has developed into a stately villa in numerous conversions and additions. The inner structures were correspondingly heterogeneous.
Use: residential building
Order: Direct order
Useful area: 350 m2
Completion: 2017
For a family with French roots and a large family, an apartment with a guest area is built in. Together with the client, a new spatial organisation is developed. The staircase is restored to its original state and opened up to the top floor.
The roofed outdoor area on the ground floor is glazed, creating a garden room that supports the family flow and solves bottlenecks.
A calm colour and material concept binds the different rooms together and supports the classic substance.
Zur Bildergalerie