




Realisierungswettbewerb
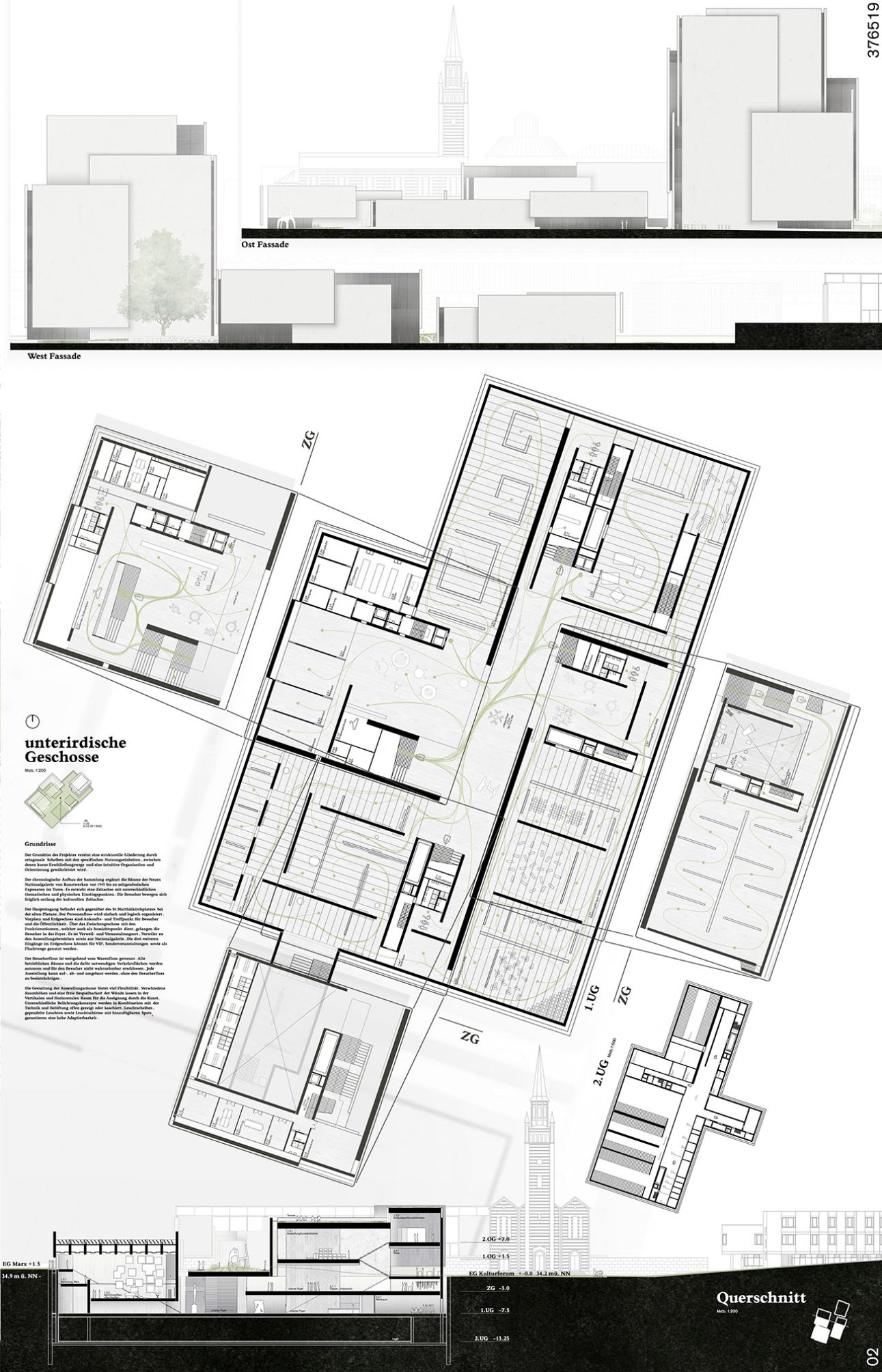
Museum des 20. Jahrhunderts
Berlin Deutschland
Nutzung: Ausstellung, Besucherservice, wissenschaftliche Verwaltung, Depot, Restaurierung
Auftrag: geschlossener Wettbewerb
Netto-Grundfläche (DIN-277): 24’433m2
Brutto-Grundfläche BGFa (DIN-277): 28’238m2
Brutto-Rauminhalt BRIa (DIN-277): 184’092m3
Grundstücksfläche: 10’243m2
Jurierung: 26.10.2016